NBS 100-S (90-110m3/saat beton )




En ağır şartlara ve farklı iklim koşullarına dayanacak şekilde tasarlanmıştır.

Daha fazla Çelik tonaj ağırlığı ile daha uzun ömürlüdür.

Tam otomatik bilgisayarlı otomasyon sistemi sayesinde yüksek kalitede beton üretimi yapabilmektedir.

4 farklı beton mikser seçeneği ile her ihtiyaca uygun beton üretimine imkan tanımaktadır.

Ekipman kullanım seviyesinde en üst kalitededir.



NBS 100-S BETON SANTRALİ TEKNİK ÖZELLİKLERİ



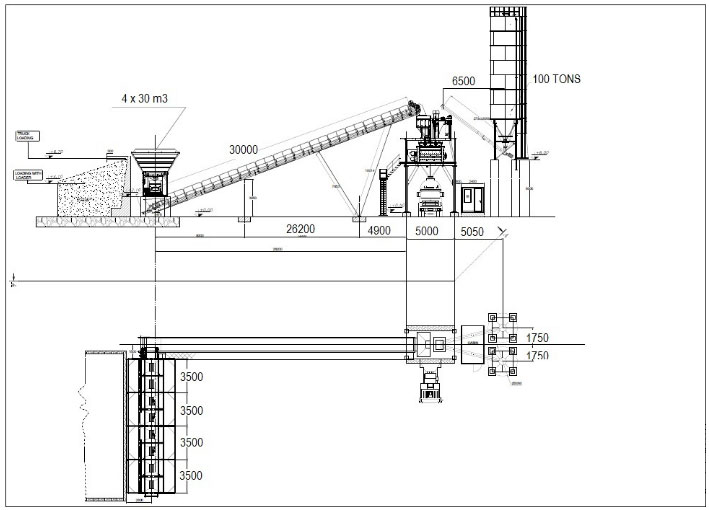
NBS 100-S BETON SANTRALİ YERLEŞİM PROJESİ






SABİT BETON SANTRALİ MODELLERİ

NBS 60-S



NBS 80-S



NBS 100-S



NBS 120-S



NBS 160-S